



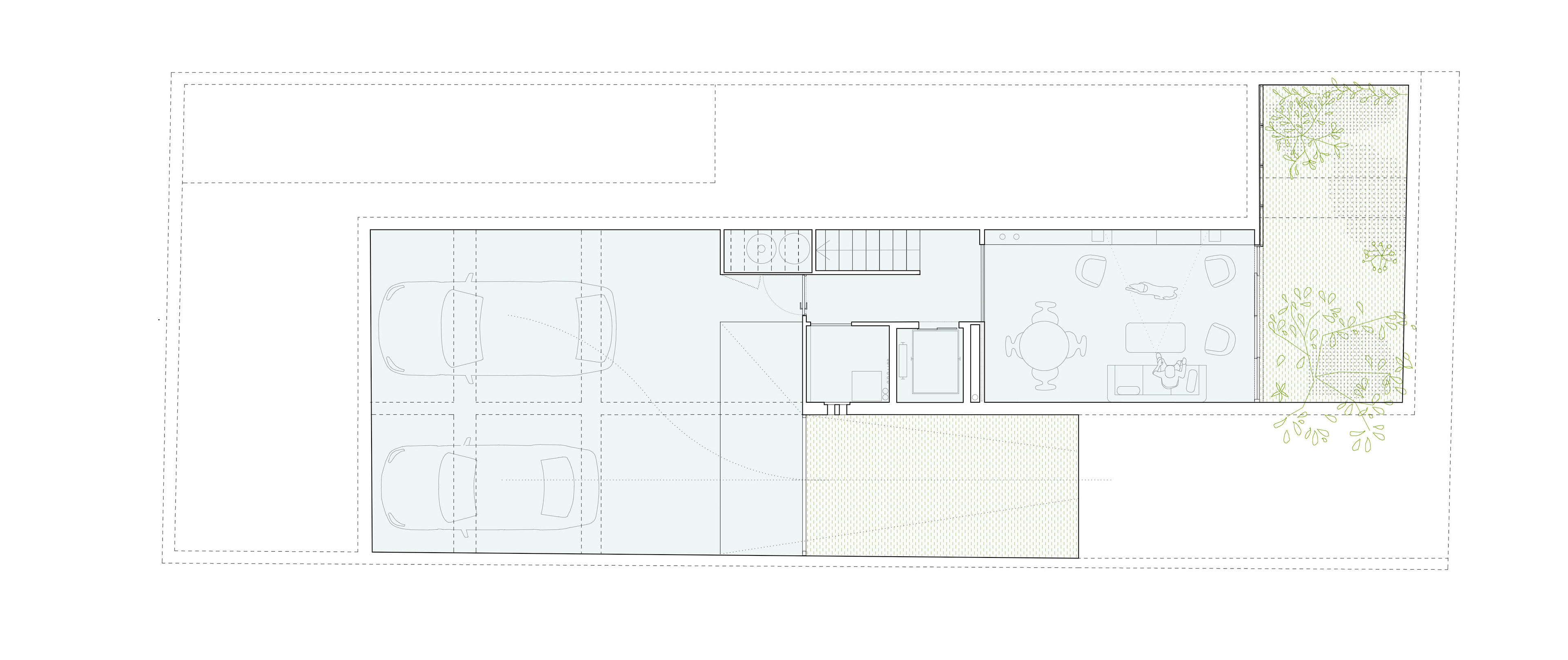
Planta baja. Acceso a través de un puente sobre el patio del sótano. Jardín y piscina






Alzado principal y sección a través del patio

Piscina longitudinal



Alzado Sur. Sección a través de la rampa del garaje

Vista del salón

Escalera principal

Vista hacia la cocina

Escalera. Detalle de barandillas y cierres metálicos

Detalle de barandilla metálica

Sección longitudinal

Subida a planta primera

Vista desde el dormitorio principal hacia la terraza

Planta principal

Baño y terraza

Baño y terraza

Escalera de caracol volando sobre la terraza

Sección transversal a través de la terraza y alzado posterior

Subida a planta segunda

Planta segunda. Invitados

Estudio de planta segunda. Acceso directo al solarium de cubierta a través de la escalera de caracol

Alzado norte

Vista aérea

Vista aérea sobre el patio de sótano y el puente de acceso

Vista aérea

Axonométrica

Fachada principal

Vista nocturna